Okemo Mountain House

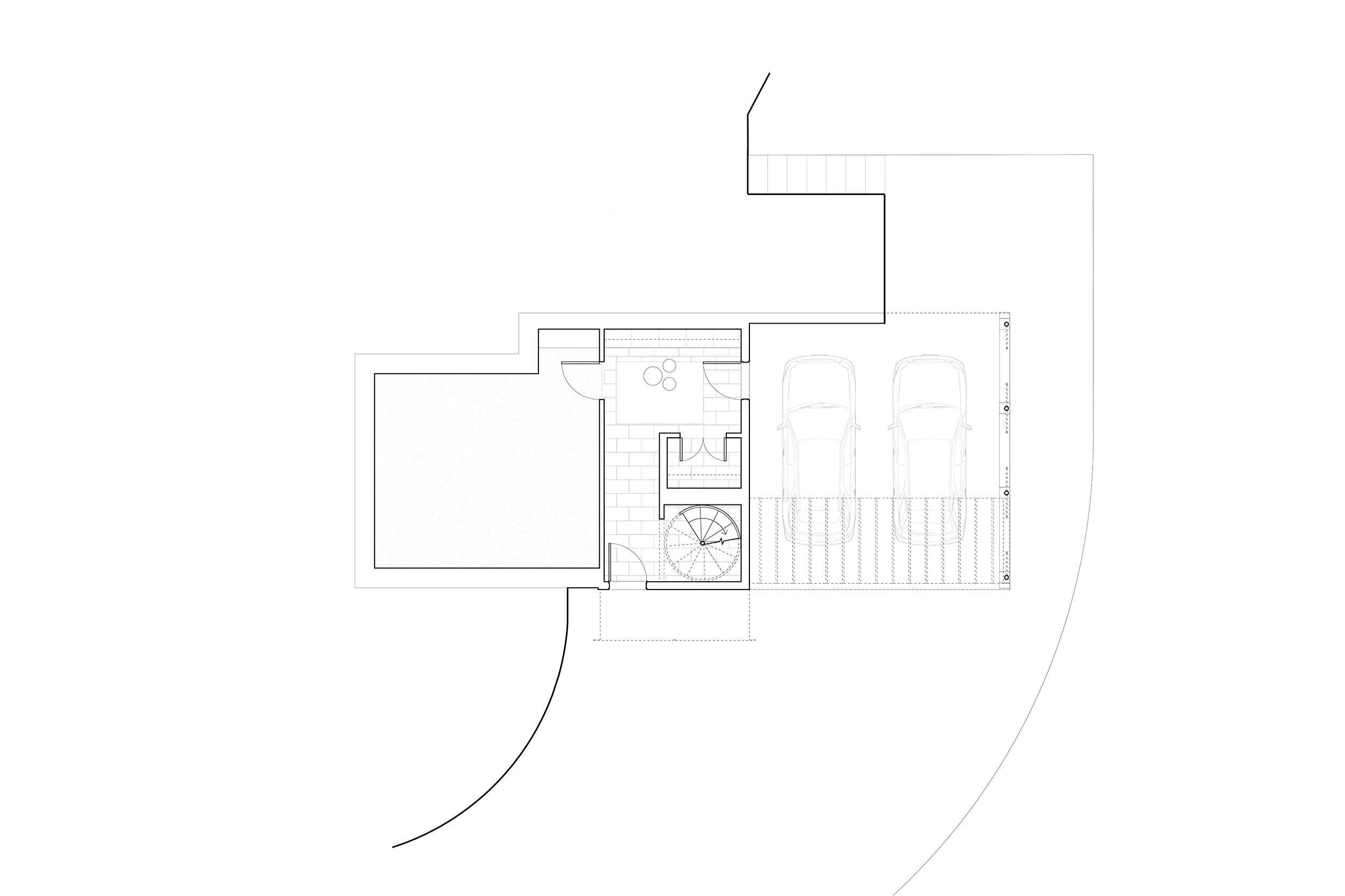
Set within a sloping meadow in Vermont’s Green Mountains, this house spans its terrain rather than cutting into it. A single volume rests on slender steel posts anchored to a concrete retaining wall, allowing the land to pass beneath with minimal disturbance. Its structure is direct and legible, informed by the quiet logic of the region’s covered bridges.

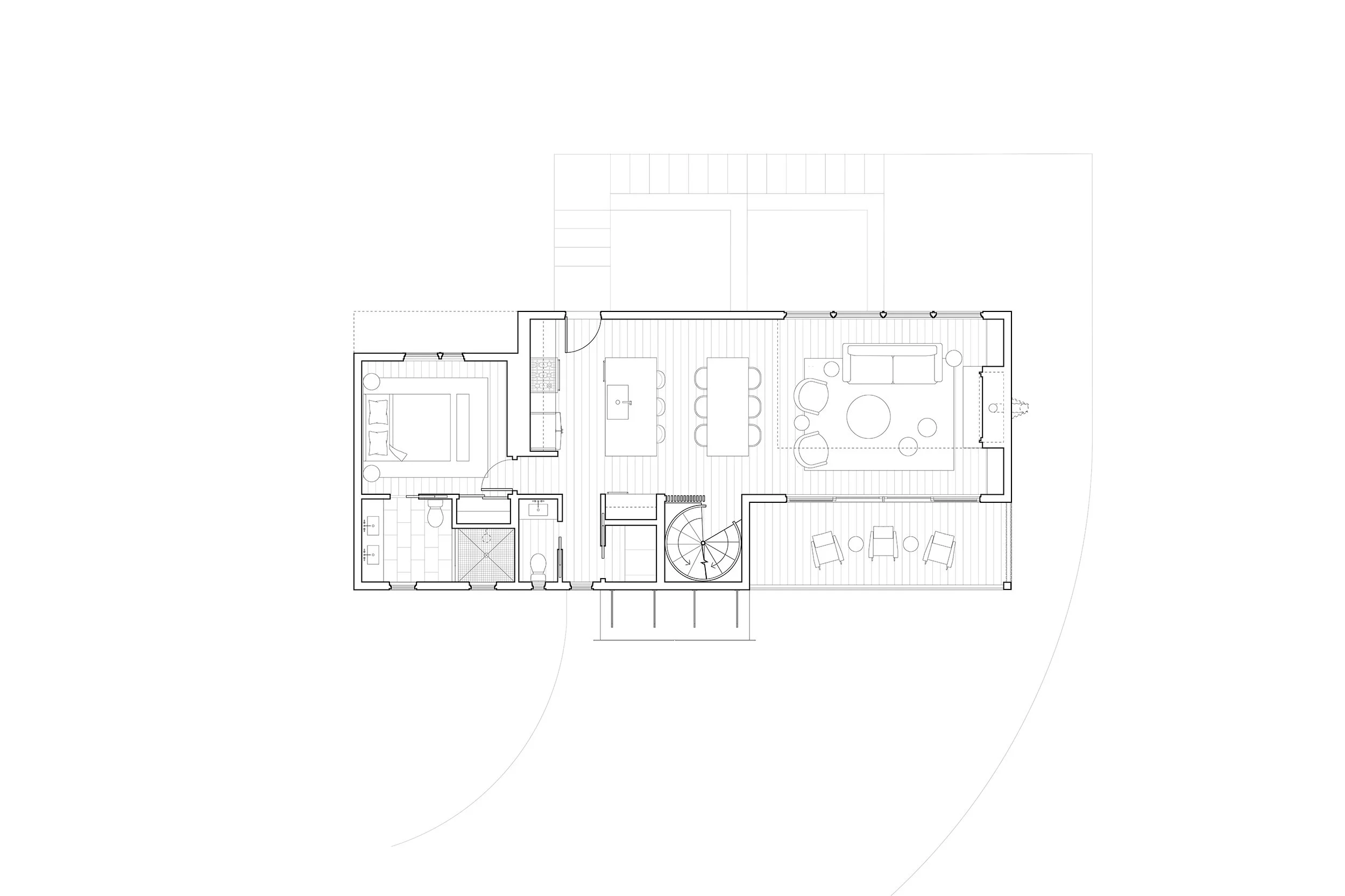
As the building projects over the slope, cladding shifts between horizontal boards and vertical battens to adjust scale across each elevation. From some angles the volume reads as grounded and weighty, from others, it appears suspended, hovering lightly above the meadow below. Entry occurs beneath the raised form before rising to an open living level where kitchen, dining, and living unfold toward the tree line. At the furthest span, the ceiling opens to double height, extending light and view.

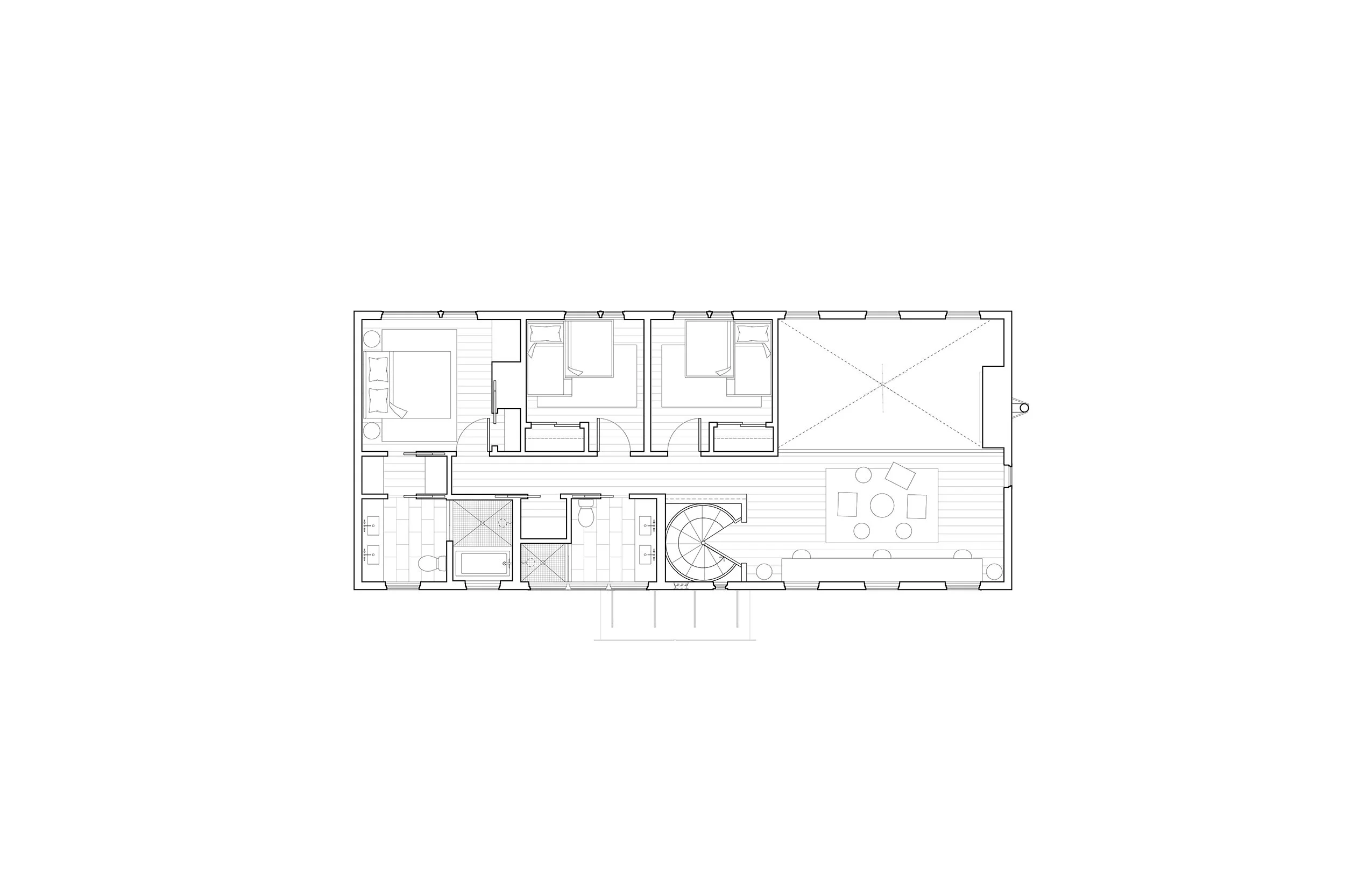
The house is deliberately compact. Bedrooms and baths are measured and efficient, set opposite the open living volume to distinguish shared and private space. Public rooms extend outward, private rooms remain contained. The building touches the ground lightly, its structure legible and its footprint restrained.

Partners:

Builder: Burns & Associates

Structural Engineering: BNJ Engineering P.C.

MEP Consultant: Rush Meadow Consulting, LLC

Photography: Ryan Bent Photography

Size
2,350 SF

Year
2026